
INCH-POUND
MIL-DTL-3476/31D
31 March 2014
SUPERSEDING
MIL-DTL-3476/31C
20 August 1997
DETAIL SPECIFICATION SHEET
BRASSARD, TRAINEES OR CANDIDATES ACTING AS OFFICERS AT TRAINING SCHOOL
OR CENTER, CAPTAIN U.S. ARMY
This specification is approved for use by all
Departments and Agencies of the Department of Defense
The requirements for acquiring the product described herein shall consist of this specification sheet
and MIL-DTL-3476.
MATERIAL:
BASE: Wool Serge Cloth
SYMBOLS: Felt
COLOR:
BASE: Olive Green (Shade 108)
SYMBOLS: White (Cable 65005)
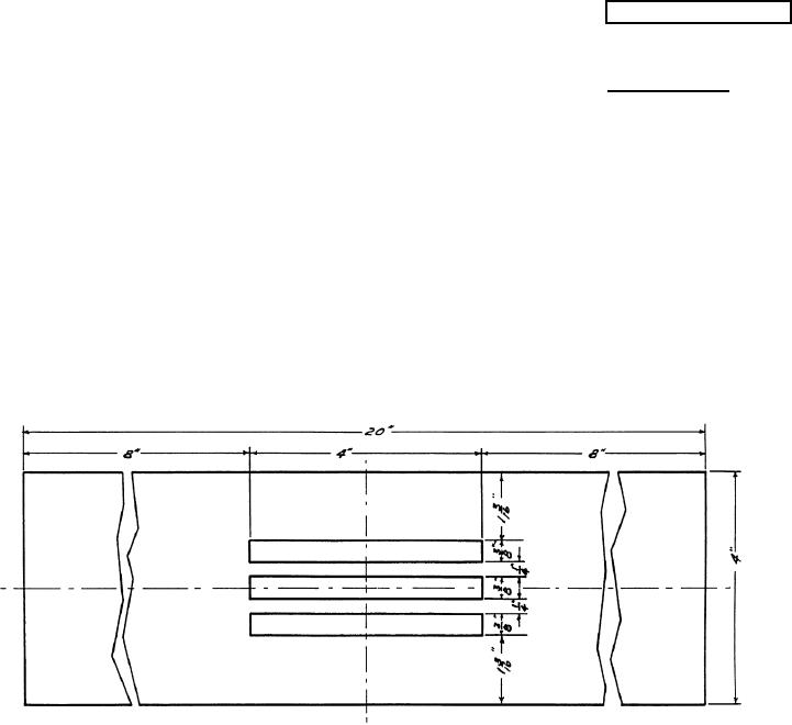
CONSTRUCTION DETAILS:
1. Symbols shall be applied to the base in the position shown using Stitch Type 301 with 16
stitches to the inch (see The Institute of Heraldry Drawing Number B-8-15).
2. The thread for appliquéing shall conform to Type IC1, 3 Ply, Ticket No. A of A-A-52094, the
color of the thread shall be White Cable No. HA 67101.
3. Base and symbols shall be cut from a single ply of the material specified.
AMSC N/A
Page 1 of 2
FSC 8455
For Parts Inquires submit RFQ to Parts Hangar, Inc.
© Copyright 2015 Integrated Publishing, Inc.
A Service Disabled Veteran Owned Small Business