
INCH-POUND
MIL-DTL-3476/13D
5 May 2014
SUPERSEDING
MIL-DTL-3476/13C
20 August 1997
DETAIL SPECIFICATION SHEET
BRASSARD, MEDICAL SERVICE, VETERINARY CORPS
This specification is approved for use by all
Departments and Agencies of the Department of Defense
The requirements for acquiring the product described herein shall consist of this specification sheet
and MIL-DTL-3476.
MATERIAL:
BASE: Wool Broad Cloth
LETTERING: Percale
COLOR:
BASE: White (Cable 65005)
LETTERS: Green (Cable 80063)
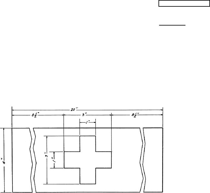
CONSTRUCTION DETAILS:
1. Device shall be appliquéd to the base in the location shown using Stitch Type 304 with 14
stitches to the inch (See The Institute of Heraldry Drawing Number B-8-33).
2. The brassard shall have a 3/8 inch hem on all sides. Hemming shall be accomplished using
Stitch Type EFa-1 with 12 stitches to the inch.
3. Thread for appliquéing shall conform to Type IC2, 3 Ply, Ticket No. A of A-A-52094 and the
color shall conform to Emerald Cable No. HAC 67128
AMSC N/A
Page 1 of 2
FSC 8455
For Parts Inquires submit RFQ to Parts Hangar, Inc.
© Copyright 2015 Integrated Publishing, Inc.
A Service Disabled Veteran Owned Small Business